
Shutters
Rustic Shutter with Frame
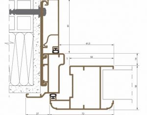
Ponzio Shutters encompasses all the systems and Shutter mechanisms signed Ponzio. In case of special situations both in restructuring that in the new building, in particular in the presence of the coating to coat (outer insulating) and there is the security of being able to take advantage of a solid fixation to the outside wall with hinges, you can opt for the choice of the Persian rustic frame. The following is represented on the drawing anchor special (fig. 2) that, compared to the conventional fitting (Fig. 1), provides a bracket that allows the anchor to the wall. For this type of shutters, you can select all lines except the rustic aesthetic of the STANDARD PLAN and 90 DEGREES.
AESTHETIC LINES

Surface Finishes

English
Italiano


